Porzione di bifamiliare in vendita

Lanuvio, Via I Maggio - Campoleone
€ 219.000
3 locali 3 locali
85 Mq 85 Mq
2 bagni 2 bagni

Porzione di bifamiliare in vendita

Lanuvio, Via I Maggio - Campoleone

Descrizione annuncio

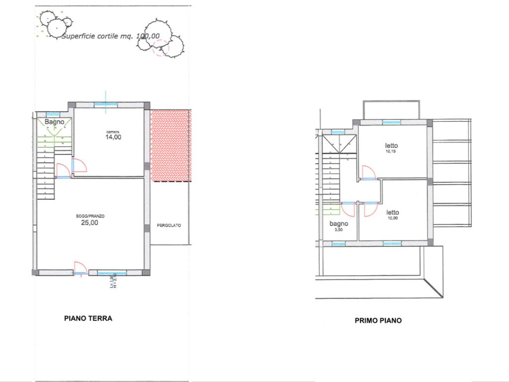
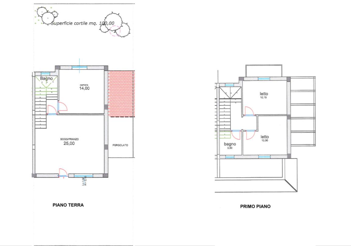
PORZIONE DI VILLINO BIFAMILIARE DI NUOVA COSTRUZIONE di circa 78 mq e CON GIARDINO DI 100 MQ.

Disposta su due livelli e dotata di tutti i comfort moderni: impianto fotovoltaico di 1,5 kw, impianto solare termico e riscaldamento con pompa di calore. Situata in una zona tranquilla e ben servita, è la soluzione ideale per chi cerca indipendenza, efficienza energetica e qualità costruttiva.

Al piano terra si trovano una luminosissima zona giorno con angolo cottura e affaccio sul giardino privato, perfetto per momenti di relax all’aperto.
Al piano superiore si sviluppa la zona notte, composta da due camere da letto e un bagno.

Completano la proprietà un giardino privato di 100 mq e posto auto. La villetta è realizzata con materiali di ultima generazione. Ideale per coppie, giovani famiglie o chi desidera una casa moderna, indipendente e a basso consumo.

Mostra tutto

Nelle vicinanze

Trasporto pubblico Trasporto pubblico
stazione di Campoleone
stazione di Campoleone
1,2 Km
Scuole Scuole
Scuola Secondaria di I grado "Ettore Majorana"
880 m
Farmacia Farmacia
Farmacia
910 m
Ristoranti Ristoranti
Campoleone ristorante pizzeria
370 m
Pachino
1,6 Km
La Meridiana
2,8 Km
Mostra tutto

Caratteristiche

Rif.:
61138949
Piano:
Su più livelli di 2
Totale piani:
2
Posti auto:
1
Camere da letto:
2
Arredamento:
Assente
Mostra tutto
Prezzo Prezzo
€ 219.000
Rata mutuo Rata mutuo
€ 1.034 / mese
Proponi il tuo prezzoProponi il tuo prezzo

Classe Energetica

G
G
G
G
G
G
G
G
G
EP invernale del fabbricato:
EP estiva del fabbricato:
Anno di costruzione:
2026
Riscaldamento:
Autonomo
Tipo impianto:
A pavimento
Tipo alimentazione:
Metano

Ti interessa visionare l'immobile?

Fissa un appuntamento  Fissa un appuntamento

Richiedi informazioni

Clicca su Leggi per aprire l'informativa
* Questi campi sono obbligatori

Calcola il tuo mutuo

Semplice e senza impegno
Anticipo

( % )
Mutuo

( % )

pochi semplici passi

inserisci i tuoi dati
Questionario completato
Grazie per aver richiesto un appuntamento senza impegno con un nostro Consulente del Credito e Assicurativo.

Hai inserito correttamente tutti i dati necessari e a breve riceverai una e-mail con un link da convalidare per inviare i tuoi dati.
Affiliato
Casa Castelli 2015 Srl
Via Generale Roberto Lordi, 98 00045 Genzano Di Roma (RM)

Il nostro staff


  • Cesare Porreca
    Affiliato

  • Anna Maria Bivona
    Coordinatrice

  • Veronica Campagna
    Collaboratrice

  • Matteo Coresi
    Collaboratore

  • Riccardo Amicucci
    Collaboratore

  • Alessandro Perone
    Collaboratore

  • Simona Ascione
    Coordinatrice
Via Generale Roberto Lordi, 98 00045 Genzano Di Roma (RM)
Zona: Genzano di Roma - Nemi
Mostra su mappa
Orari: Lun: 9:00/13:00 - 15:30/20:00 Mar:9:00/13:00 - 15:30/20:00 Mer: 9:00/13:00 - 15:30/20:00 Giov: 9:00/13:00 - 15:30/20:00 Ven: 9:00/13:00 - 15:30/20:00 Sab: 9:00/13:00 - 15:00/18:00 Dom: CHIUSO
Affiliato
Casa Castelli 2015 Srl
Via Generale Roberto Lordi, 98 00045 Genzano Di Roma (RM)

2025 Tecnocasa Franchising S.p.A. - P. IVA 08365160152 - Via Monte Bianco 60/A 20089 Rozzano (MI). Ogni agenzia ha un proprio titolare ed è autonoma. Privacy policy | Policy utilizzo | Cookie policy